¹ÙÀÌ¿ÀÇÊÅÍ
Bio Filter

Å»Ãë±â
¹ÙÀÌ¿ÀÇÊÅÍ
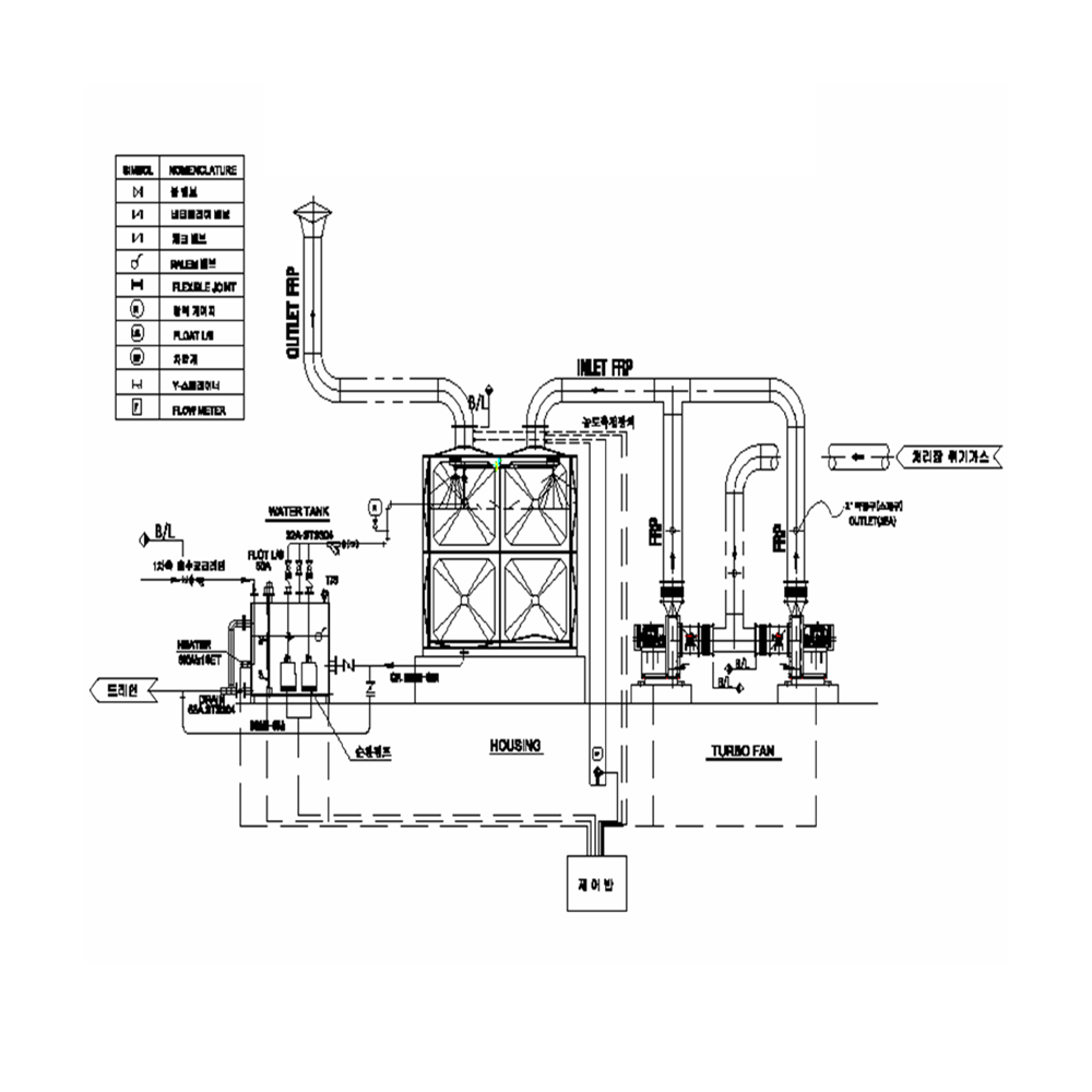
°¡½º¼ÓÀÇ ¿À¿°¹°ÁúÀ» »ý¹°ÇÐÀûÀ¸·Î ó¸®ÇÏ´Â ¹æ¹ýÁßÀÇ Çϳª·Î¼, ¹Ì»ý¹°À» ´Ù°ø¼ºÀÇ ´ãü¿¡ °íÁ¤È½ÃÄÑ ¹Ì»ý¹°ÀÇ ´ë»çȰµ¿¿¡ ÀÇÇØ ¿À¿°¹°ÁúÀ» ¹°, ÀÌ»êÈź¼Ò ±×¸®°í ¹«ÇØÇÑ ¿°À¸·Î ºÐÇØÇϴ ȯ°æÄ£ÈÀûÀÌ°í °æÁ¦ÀûÀΠó¸® °ø¹ýÀ» ¸»ÇÕ´Ï´Ù. ÇϳªÀÇ °ø±âÈ帧¿¡¼ Á¸ÀçÇÏ´Â ¿À¿°¹°À» ºÐÇØÇϱâ À§ÇØ ¼¼°ø¸Åü¿¡ °íÁ¤µÈ ¹Ì»ý¹°À» ÀÌ¿ëÇÕ´Ï´Ù.
Á¦Ç°±¸Á¶
Ư¡ ¹× ¼ººÐ
ÁÖ¿ä Æ¯Â¡
- ¹Ì»ý¹°À» ÀÌ¿ëÇÑ ¾ÇÃë ¹× VOC ¹°ÁúÀ» ¹«ÇØÇÑ ÀÌ»êÈ Åº¼Ò¿Í ¹°·Î ºÐÇØÇÏ´Â ½Ã½ºÅÛÀÔ´Ï´Ù.
- °ú¸³ÇüÀÇ ´Ù°ø¼º ÆØÃ¢Á¡Åä ¼¼¶ó¹Í ´ãü´Â º¸¿Â ¹× º¸½ÀÀÌ ¿ì¼öÇÏ¿© ÃÖÀûÀÇ ¹Ì»ý¹° »ýÀ°Á¶°ÇÀ» À¯ÁöÇÕ´Ï´Ù.
- ¸Þµð¾Æ´Â 1100¡ÉÀÌ»óÀ¸·Î ¿Ã³¸®µÇ¾î °µµ°¡Å©°í ºñºÐÇØ µÇ¹Ç·Î ¼ö¸íÀÌ ±é´Ï´Ù.
- ȲÅä¿Í Á¦¿Ã¶óÀÌÆ®µî ÁßÈÁ¦°¡ Æ÷ÇÔµÈ ¸Þµð¾Æ´Â pH ÀÚü Á¶Àý´É·ÂÀÌ ÀÖ¾î ÁßÈ »óŸ¦ À¯ÁöÇÕ´Ï´Ù.
- ¿ÏÈ¿¼º Ư¼ö ¹èÇÕ ÄÞÆ÷½ºÆ® À¯±âÁúÀÌ È¥ÇյǾî pH ±âº¹¿¡ ´ëÇÑ ¿ÏÃæ´É·Â°ú ¹Ì»ý¹° ¼ºÀåÁ¶°ÇÀ» ÃÖÀûÀ¸·Î À¯Áö½Ãŵ´Ï´Ù.
- Àå±â°£ÀÇ ¿îÀü¿¡µµ ¾Ð·Âº¯È°¡ ÀÏÁ¤ÇÕ´Ï´Ù.
¸Þµð¾Æ (MEDIA)ÁÖ¿ä ¼ººÐ
- ¸Þµð¾Æ´Â SiO2, Al2O3, Fe2O3, CaO, Na2O, K2O, P2O5°ú CaCO3µîÀ¸·Î ±¸¼ºµÇ¾î ÁßÈÀÛ¿ë Èí¼ö·Â, ÀÚÁ¤·Â, »ý¸í·ÂÀÌ ¿ì¼öÇÏ¸ç ¿øÀû¿Ü¼±ÀÌ ¹æ»çµÇ¾î ¹Ì»ý¹°ÀÌ È°¼ºÈµË´Ï´Ù. ¶ÇÇÑ, ȲÅä´Â ³¿»õÁ¦°Å ¹× Ç×±ÕÀÛ¿ë µîÀÇ ±â´ÉÀ» Áö´Ï°í ÀÖ½À´Ï´Ù.
- ¹«¼ö±Ô»ê(SiO2)°ú »êȾ˷ç¹Ì´½(Al2O3)ÀÇ ¼ººÐÀº ÁßÈ, »êÈ ¹æÁö, phÁ¶ÀýÀ» ÇÕ´Ï´Ù.
- °Ô¸£¸¶´½Àº ¹Ì»ý¹°¿¡ »ê¼Ò¸¦ º¸ÃæÇÏ¿© Ç×»êÈ ÀÛ¿ëÀ¸·Î »ê¼ºÈ ¹× ¼¼Æ÷ÀÇ ³ëȸ¦ ¹æÁöÇÕ´Ï´Ù.
- Á¦¿Ã¶óÀÌÆ®´Â Áß±Ý¼Ó ÈíÂø ¹× ¹Ì»ý¹° carrier¿¡ ÀûÇÕÇÏ¸ç ¾Ï¸ð´Ï¾Æ¼º Áú¼Ò ÈíÂø¿¡ À¯¸®ÇÕ´Ï´Ù´Ù. »ó±â¼ººÐÀÌ ¼Ò¼º¹èÇÕµÈ ´Ù°ø¼º ÆØÃ¢Á¡Åä ¼¼¶ó¹ÍÀº À¯±â¹° ÄÞÆ÷½ºÆ®¿Í ¹èÇÕ ÃæÁøµÇ¾î pHÁ¶Àý ´É·Â°ú pH ±âº¹¿¡ ´ëÇÑ ¿ÏÃæ´É·ÂÀÌ ¿ì¼öÇÏ°í ºñºÐÇØ¼ºÀ¸·Î ¼ö¸íÀÌ ±é´Ï´Ù.
󸮰èÅëµµ






